FULLY DA APPROVED SITE LOCATED AT HERVEY BAY AIRPORT - 31DS

DEVELOPMENT SITE $1.5M + GST

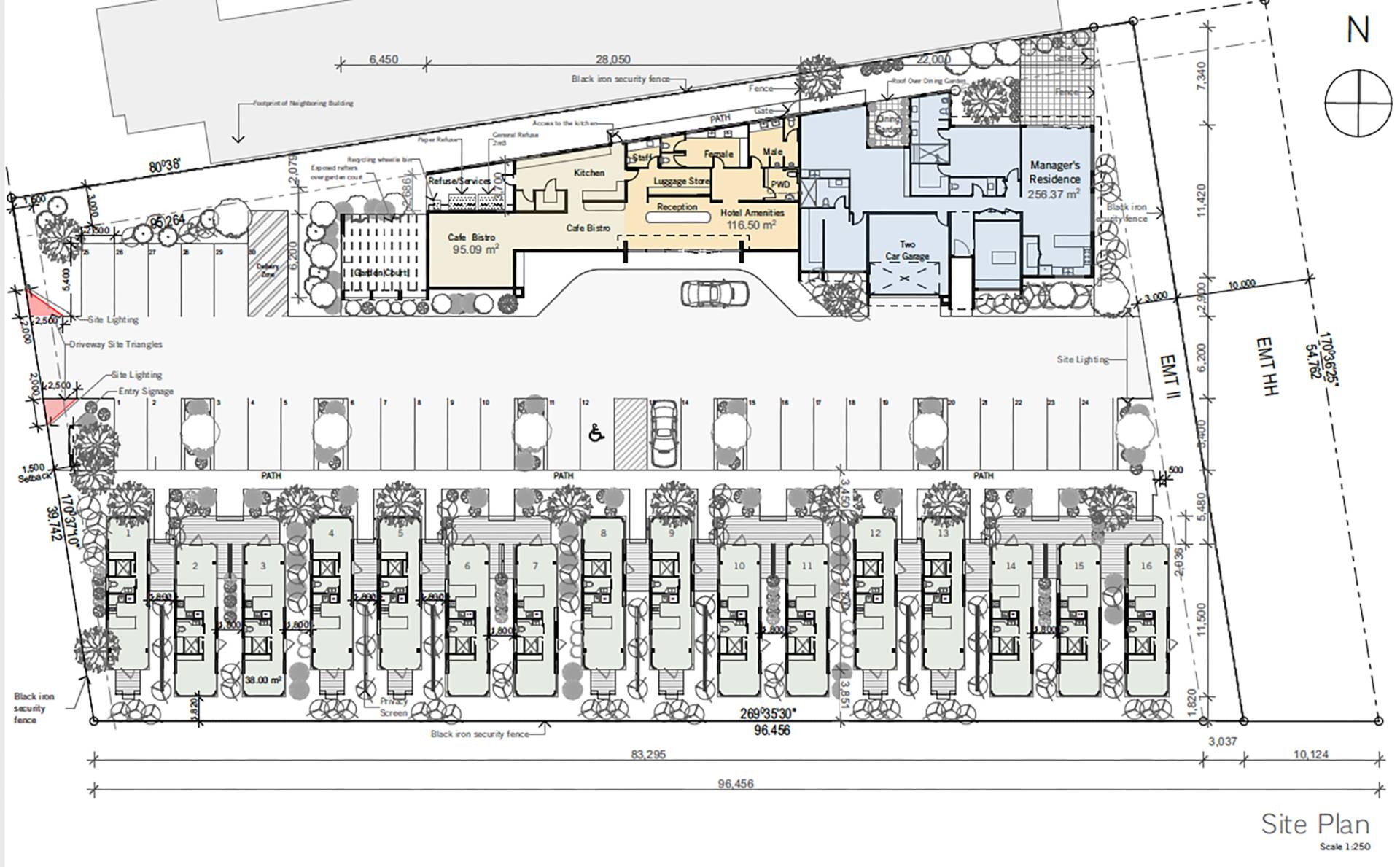
A rare opportunity for developers or commercial investors to secure a significant 4,502m² site in the thriving coastal hub of Urangan, Hervey Bay. Zoned MU2 - Mixed Use, and with an approved Development Application for a boutique hotel and hospitality precinct, this property offers immediate upside and long-term growth potential in one of Queensland’s most active regional markets.

 

  • Development Approval: MCU22/0106 - Fully approved for mixed-use development.
  • Site Area: 4,502 m2.
  • Zoning: Mixed Use (MU2) – Hervey Bay Airport Business Park.
  • Permitted Uses: 16-unit hotel (Alibaba Hotel Suites), Cafe/bistro, VIP function rooms.
  • Approval Validity: 6 years (Approved 31/03/2023, Amended 23/01/2024).
  • Site Readiness: Cleared, flat, and construction-ready (drawings to be finalised).
  • Council Rates: $1,147.94 (for period 01/03/2025 to 30/06/2025).

 

This is a turnkey opportunity in a fast-growing lifestyle destination with strong demand across tourism, residential, and commercial sectors. Whether you proceed with the approved scheme or explore a new vision (STCA), 1 Southern Cross Circuit offers flexibility, scale, and strategic location in equal measure.

 

Contact Dale from Tourism Brokers for further information or to arrange an inspection.

Property ID: 31DS (quote when enquiring)

 

Price DEVELOPMENT SITE $1.5M + GST
Location Urangan
Property ID 31DS
Category Motel

Quick Links

Share Property